Redgate Street, Mansfield
This is our first new build housing project and consists of 11 modern houses built on former domestic garaging on a residential street off Westfield Lane, Mansfield.
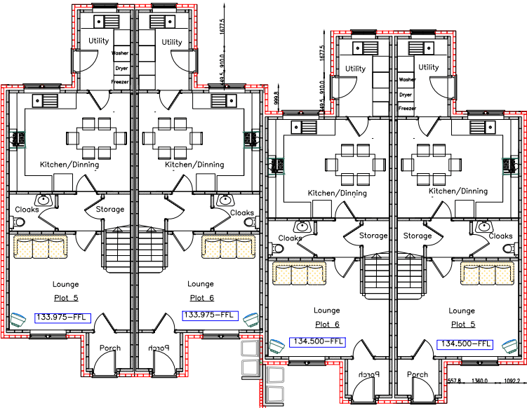
The site is split, with 4 houses on the lower plot near to the Redgate Pub and 7 houses on the plots at the top of the road on land next to Redgate House.
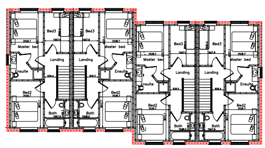
Phase 2 consists of 4 further modern terraced houses. Plots 8-11, with 3 beds, utility and ensuite.
and
Phase 3 consist of 3 houses, Plots 5-7, again in a terrace arrangement, consisting of 2 x 3beds identical in layout to Plots 1-4, and 1 x 4 bed with a second bathroom and integral garage.
Both Phase 2 and 3 are situated on a private shared driveway maintaining the privacy and exclusivity of this end of the street.
These will be commenced in the Autumn/Winter of 2021 and will come to market in Spring/Summer 2022.








